| IMM | zurück




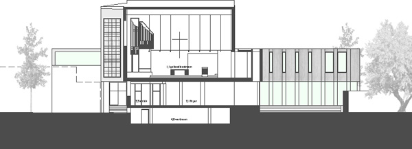
zurück | lageplan | eg | og | 2.og | ansichten | schnitte |