| MARIS |

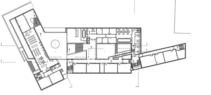
maristenschule, neuordnung und erweiterung einer bestehenden realschule, recklinghausen
einladungswettbewerb, 2017
auslober: maristenschule recklinghausen vertreten durch das bischöfliche generalvikariat münster




beschreibung | zurück